
![]() |
|
蓝式过滤器,河北普惠是篮式过滤器厂家 !为您提供蓝式过滤器介绍,蓝式过滤器图片、蓝式过滤器价格信息,如果您有这方面的需求,请联系15226715191。蓝式过滤器、篮式除污器厂家普惠拥有自主生产能力。普惠阀门是老厂家。厂家直接销售有价格优势,售后服务优势。
1.河北普惠是篮式过滤器 生产厂家,近几年加大了科技投放力度。让此产品 技术 了。价格经济、功能优良。篮式过滤器名子由来:因为此过滤器的内滤网像个我们日常生活中使用的篮子,所以大家就称它为篮式过滤器了。
2.产品功能:篮式过滤器用于油或其它液体管道上,过滤管道里的杂物,过滤孔面积比通径管面积大于2-3倍,过滤面积大。 过滤。过滤精度通常是4-40目。过滤精度可选.过滤精度越高,网孔越小。

1.工作温度:-80+450℃;
2.公称通径:DN40mm、DN50mm、DN65mm、DN80mm、DN100mm、DN125mm、DN150mm、DN200mm、DN250mm、DN300mm、DN350mm、DN400mm、DN450mm、DN500mm、DN600mm、DN700mm、DN800mm、DN900mm、DN1000mm、DN1200mm;
3.公称压力:PN1.0—2.5Mpa;
4.材质:壳体材质,碳钢或不锈钢。滤篮材质,不锈钢。
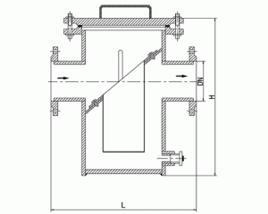
5.常规结构尺寸:

| DN | 50 | 65 | 80 | 100 | 125 | 150 | 200 | 250 | 300 | 350 | 400 | 450 |
| H | 270 | 300 | 340 | 390 | 420 | 450 | 550 | 660 | 700 | 780 | 850 | 900 |
| L | 280 | 320 | 360 | 420 | 440 | 520 | 650 | 700 | 730 | 770 | 820 | 950 |
管道在安装时会有其它杂物带入管道,在生产中原材料中也含有杂物。管道里液体经过过滤器时它的污物由过滤器收藏到滤网中,在 的程度时打开壳盖清理滤网即可。
篮式过滤器主要由接管、筒体、滤篮、法兰、法兰盖及紧固件等组成。安装在管道上能除去流体中的较大固体杂质。使机器设备(包括压缩机、泵等)、仪表能正常工作和运转,达到稳定工艺过程,保护 生产的作用。
篮式过滤器是除去液体中少量固体颗粒的小型设备,当流体进入有 网孔的滤网的滤筒后,其杂质被阻挡,而清洁的滤液则由过滤器出口排出,当需要清洗时,只要将可拆卸的滤筒取出,处理后重新装入即可。因此,使用维护 为方便。目前已广泛应用于石油、化工、医药、食品、环保等行业.若将其串连的安装在泵的入口或系统管线的其他部位,则既可以延长泵和其他设备的使用寿命,又能保护整个系统的 。
当需要清洗时,旋开主管底部螺塞,排净流体,拆卸法兰盖,清洗后重新装入即可。
1.确定安装篮式过滤器管路口径,确定篮式过滤器的口径?
原则上过滤器的进出口通径不应小于相配套的泵的 通径,一般与 管路口径一致。
2.公称压力:按照过滤管路可能出现的 高压力确定过滤器的压力等级。
3.孔目数的选择: 主要考虑需拦截的杂质粒径,依据介质流程工艺要求而定。
4.篮式过滤器是要直通的?
还是高进低出,还是低进高出?
直通是使用量 大,也是使用 广泛的。
高进低出或低进高出是有现场特别的管路设计决定,如果是这样的需要详细数据的。
5.如果您对流量或过滤精度有特别要求或安装环境受限时。希望能与我们及时沟通说明安装现场使用状况。以便量身打造 适您的篮式过滤器。普惠 生产供应商免费提供安装方案。用心服务客户! 蓝式过滤器,篮式除污器厂家价格_河北普惠机电设备有限公司欢迎您!

普惠功能相似的同类过滤器产品还有:河北水泵扩散型过滤器,球墨铸铁Y型过滤器,大口径自动排污过滤器,GL41HY型过滤器,Y型过滤器,功能相似但是每个产品都各有特点!对比选购!